UAB | Uppie Açai Berry

Project overview

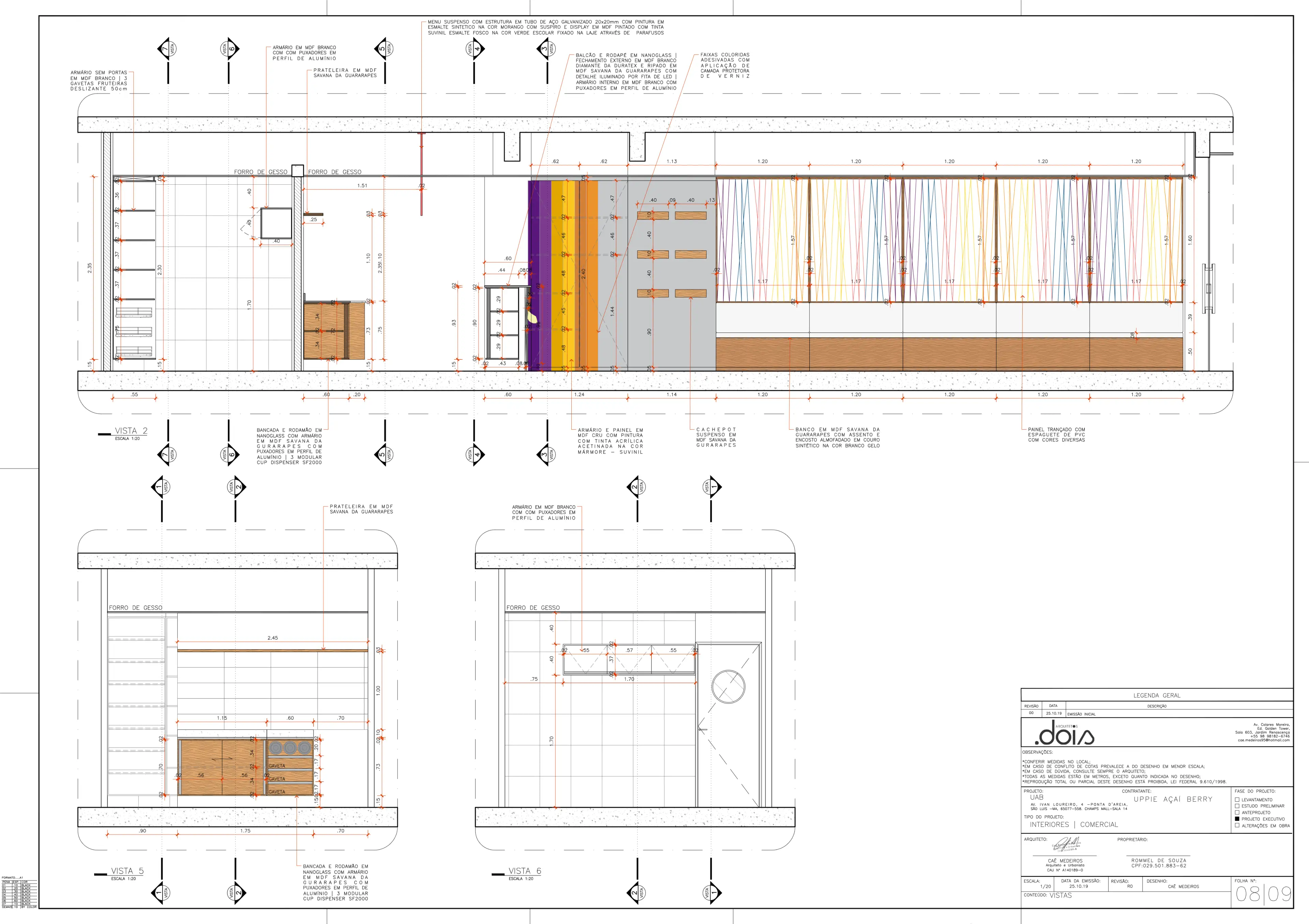
The design concept celebrates the brand’s playful identity through colour, texture, and movement. Inspired by the fluid lines of the brand’s logo, the interior features a dynamic mix of curves and bright tones.

Custom wall and ceiling panels made of colourful spaghetti cords create a striking focal point, introducing rhythm and visual continuity throughout the space. Balanced by natural wood tones and soft lighting, the design achieves a cheerful and inviting atmosphere that captures the joyful essence of the brand.

Details

Collaboration with Ponto Dois Arquitetos.

Specifications

Area of site

505 ft2

Date

2020

Status of the project

Completed

Tools used

AutoCAD, SketchUp, V-Ray, Photoshop

Layout

Renderings

My sketches

Results

Ana Luiza Mesquita

Vancouver, BC | (236) 234-1517 | almesquita.arq@gmail.com