SDH | Studio Design Holandeses

Project overview

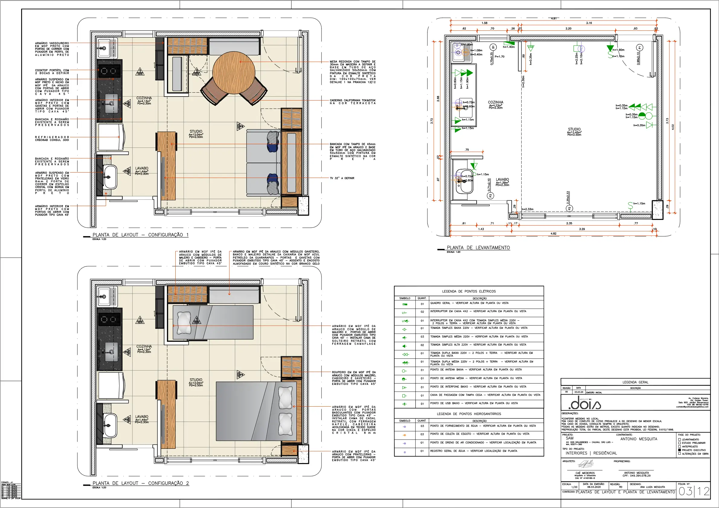
The challenge in this 280 sq. ft. studio was to design a comfortable and flexible space for up to three occupants while keeping interventions minimal to support future Airbnb rentals. The layout was carefully optimized through custom millwork that maximizes functionality and adds warmth to the interior.

The studio can be easily adapted between two configurations: day mode and night mode. During the day, it functions as a living and dining area with a sofa, table, chairs, and a built-in bench for studying or entertaining. At night, the space transforms into a cozy bedroom that accommodates both a double and a single bed.

Details

Collaboration with Ponto Dois Arquitetos.

Specifications

Area of site

280 ft2

Date

2020

Status of the project

Completed

Tools used

AutoCAD, SketchUp, V-ray, Photoshop

Mood Board

Layout

Day mode
Night mode

Renderings

My sketches

Ana Luiza Mesquita

Vancouver, BC | (236) 234-1517 | almesquita.arq@gmail.com