RST |  Rosseti Gastronomy

Project overview

Rosseti is a well-established Italian family business specializing in catering, located in São Luís, Brazil. To celebrate its 30th anniversary, the clients decided to undertake a complete renovation of their office space.

The design concept aimed to expand the area while creating a warm and sophisticated atmosphere that reflects Rosseti’s heritage. It combines elements of classic Italian architecture with touches of local culture, resulting in a space that feels both elegant and authentic.

Details

Collaboration with Giulia Buonocore Arquitetura.

Specifications

Area of site

1290 ft2

Date

2022

Status of the project

Completed

Tools used

AutoCAD, SketchUp, V-Ray, Photoshop

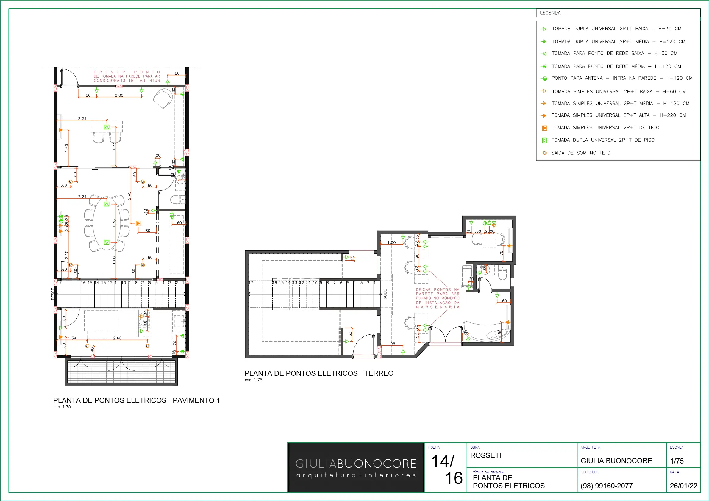
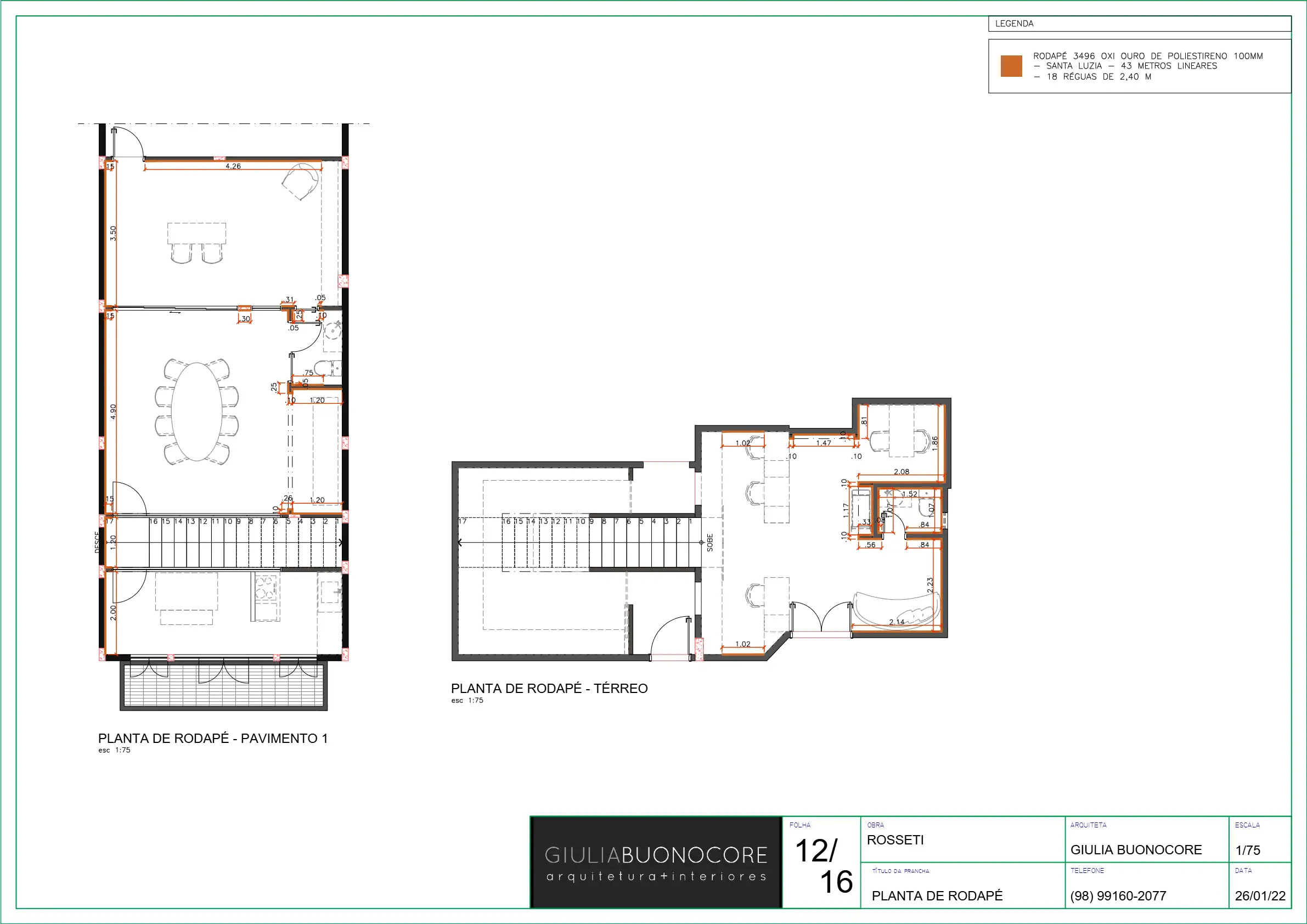
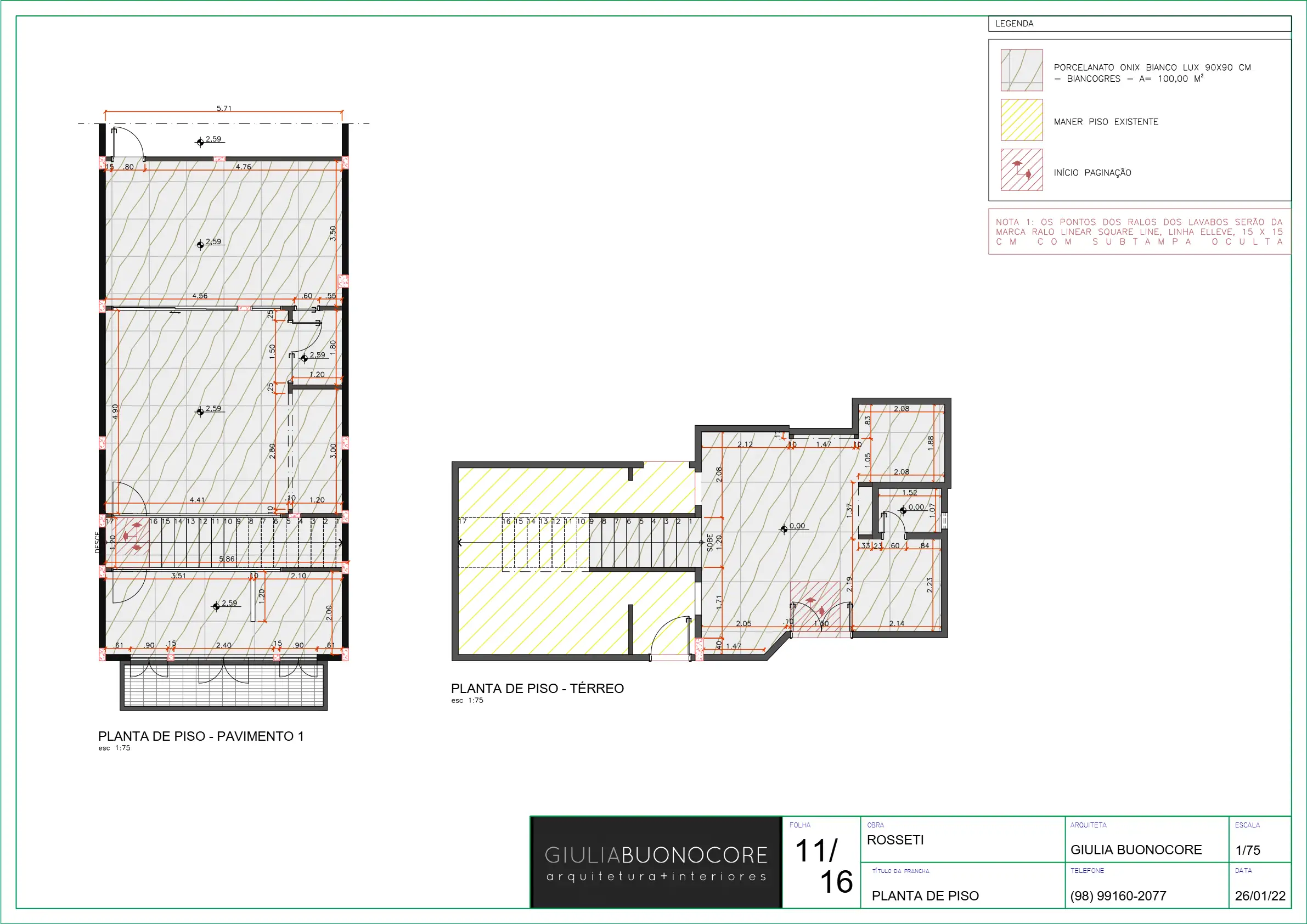
Layout

Renderings

My sketches

Results

Ana Luiza Mesquita

Vancouver, BC | (236) 234-1517 | almesquita.arq@gmail.com