PCF | Pedro's Apartment

Project overview

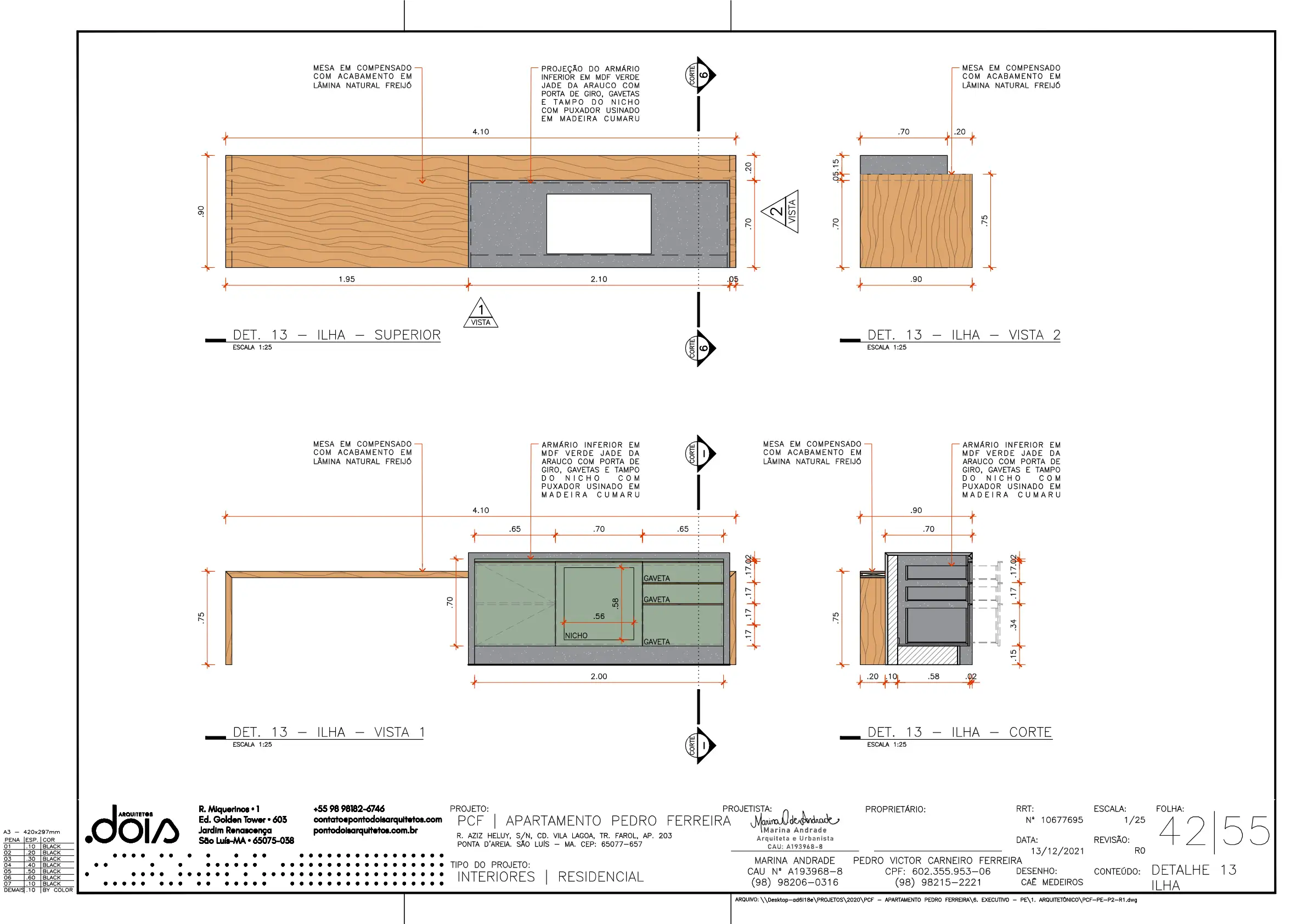
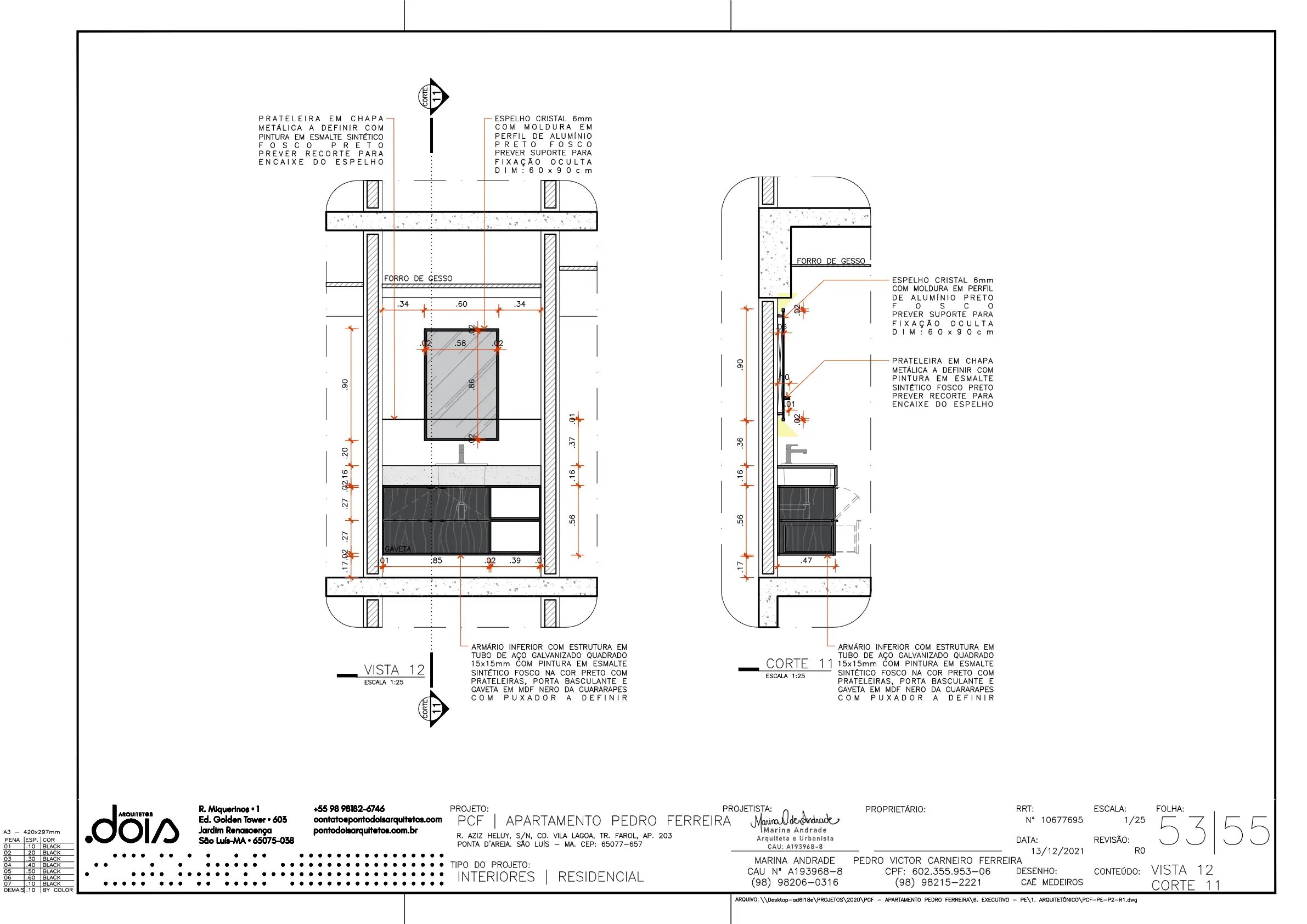
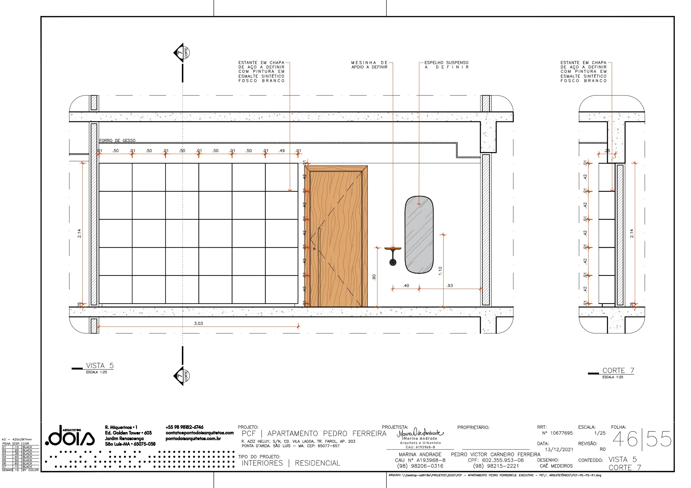
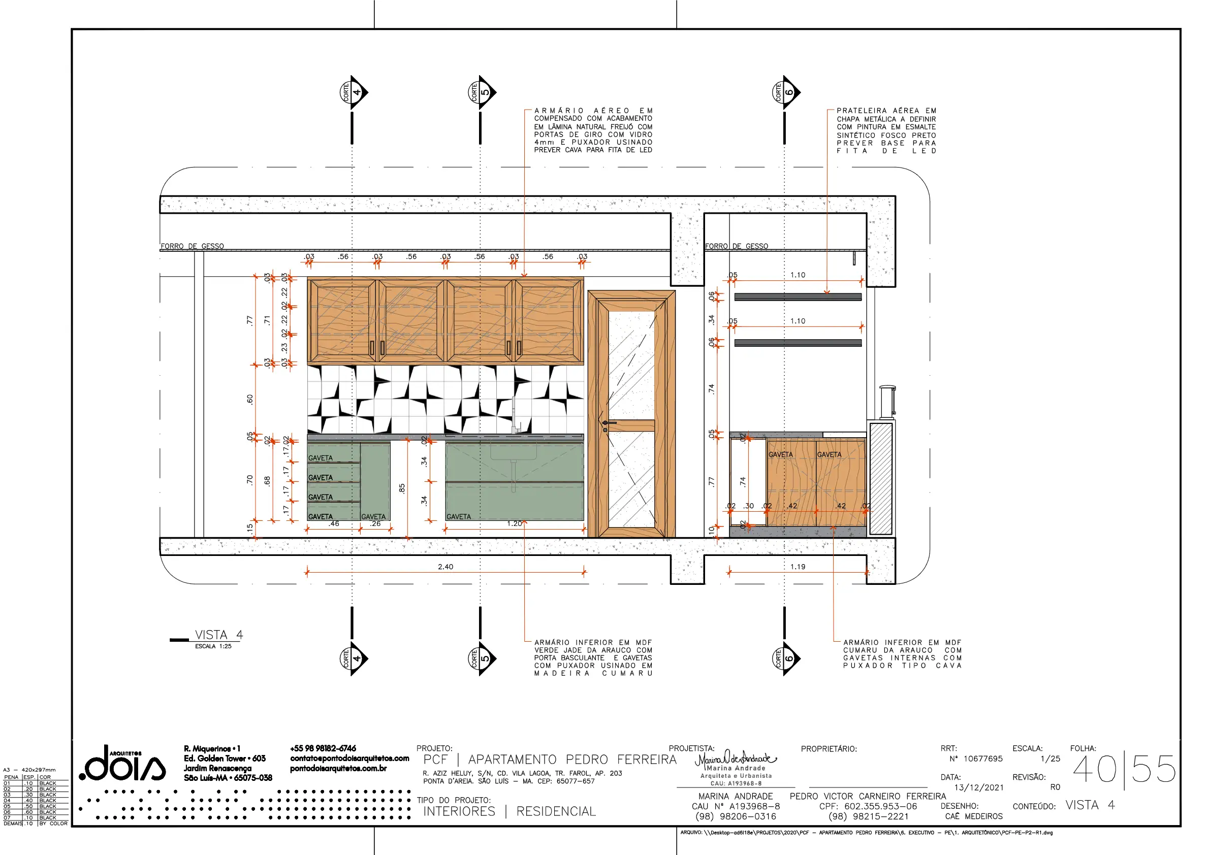
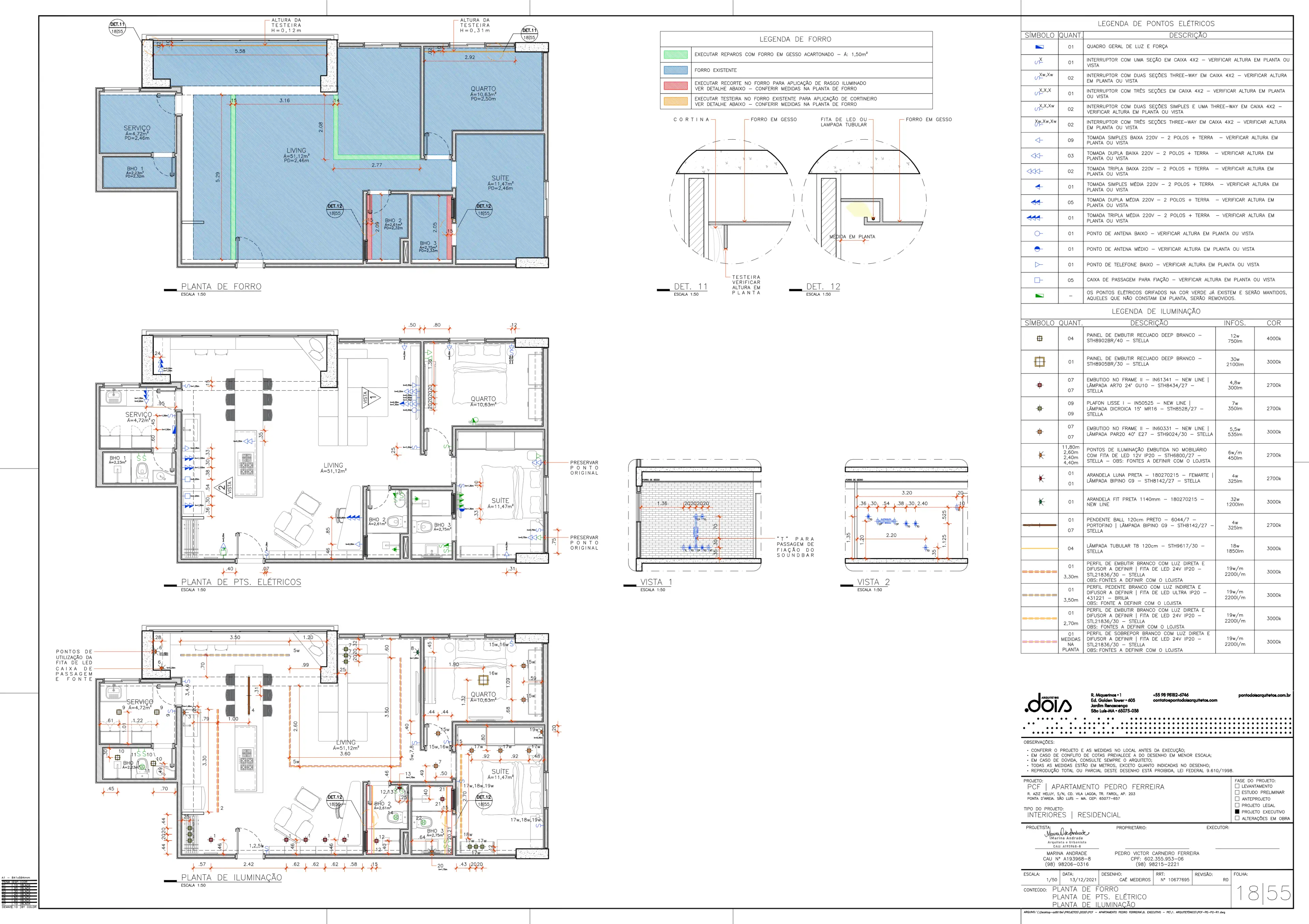
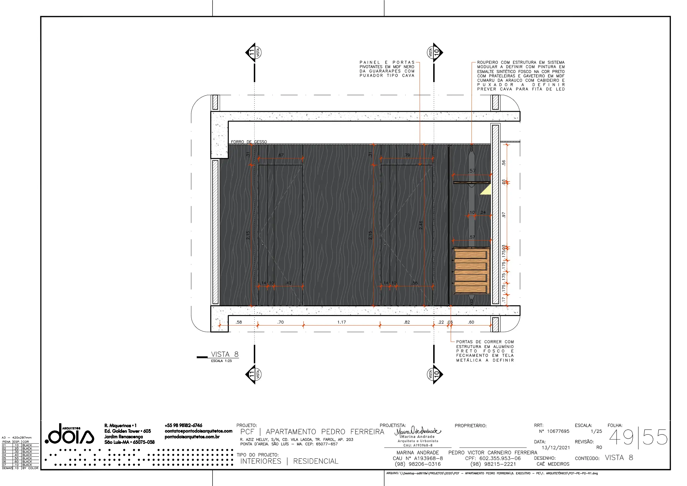
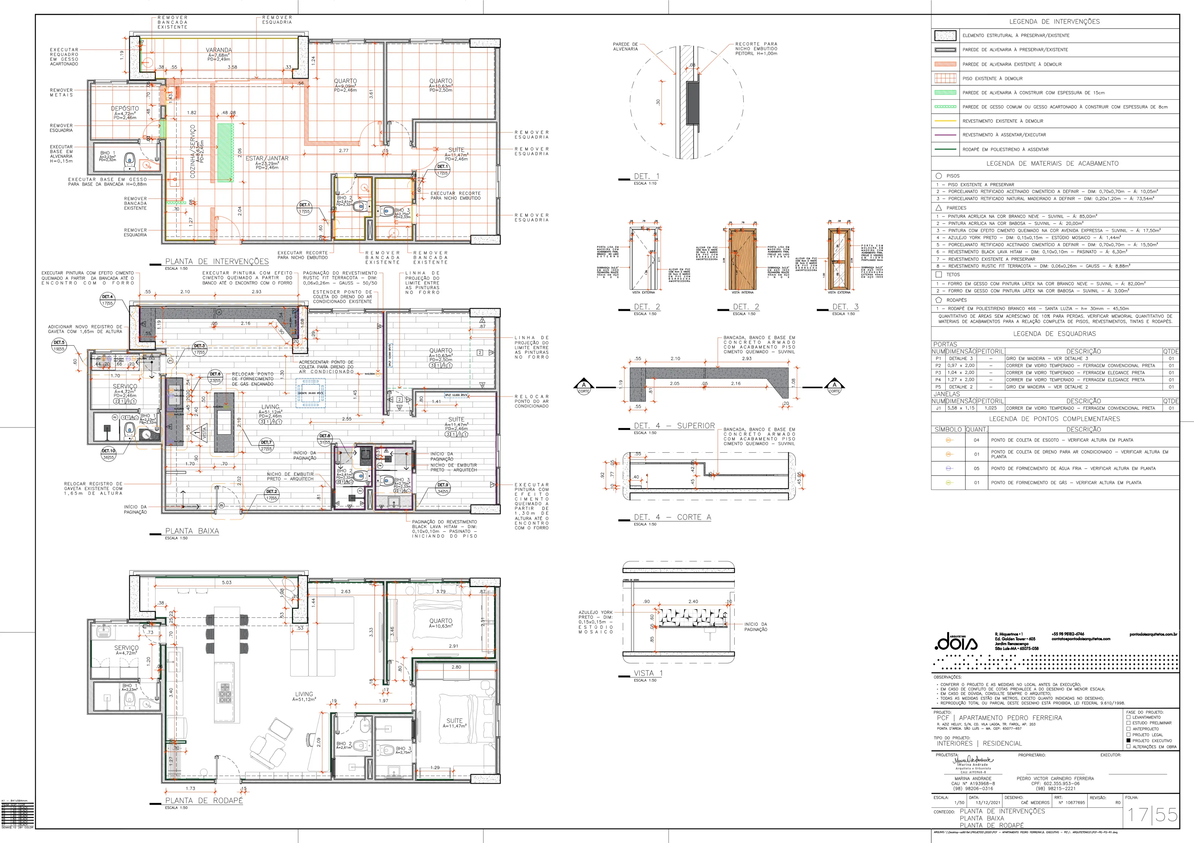
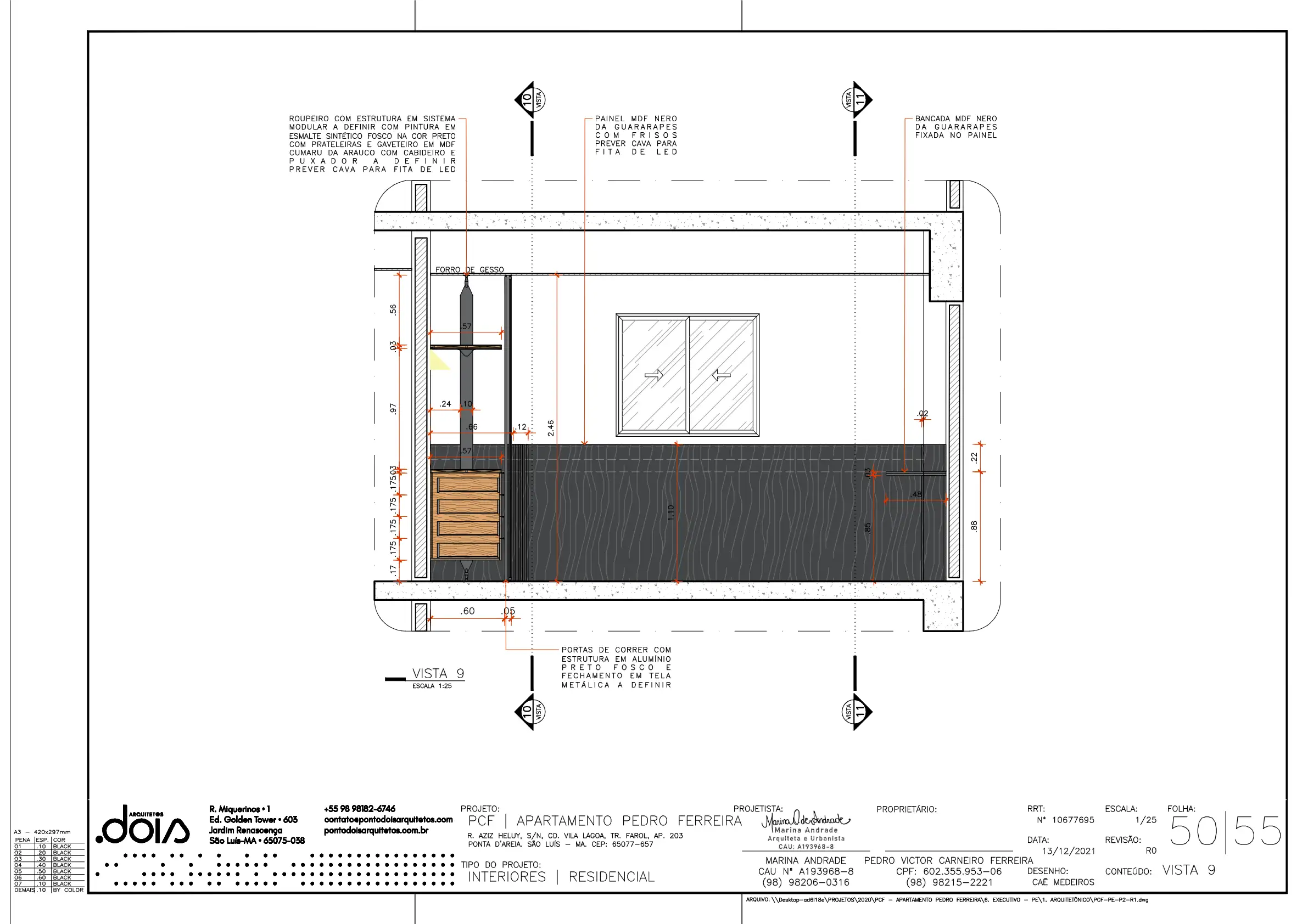
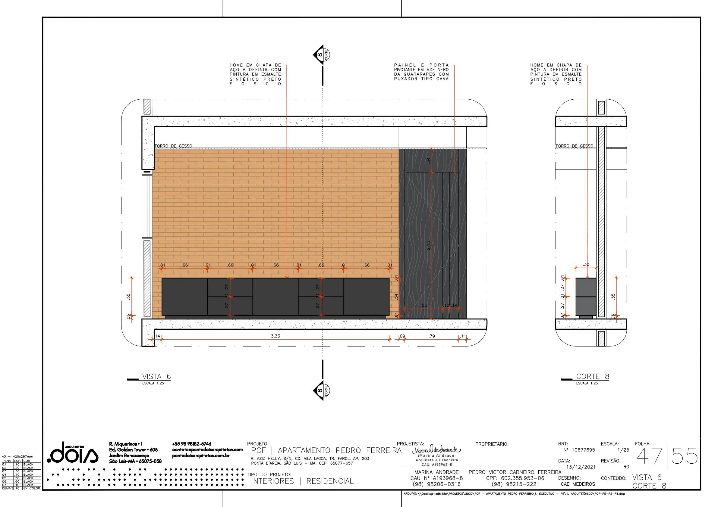
The goal of this project was to create a comfortable and inviting home where the client could host dinner parties and gather with friends. Pedro, an avid cook, envisioned the kitchen as the true centerpiece of his apartment. To achieve this, we removed one of the bedrooms and the existing kitchen walls, creating an open-concept layout that seamlessly integrates cooking, dining, and socializing. The bilateral sofa played a central role in connecting the kitchen to the living room, allowing Pedro to interact with his guests while preparing meals.

Details

Collaboration with Ponto Dois Arquitetos.

Specifications

Area of site

1044.1 ft2

Date

2021

Status of the project

Completed

Tools used

AutoCAD, SketchUp, V-Ray, Photoshop

Mood Boards

Layout

Renderings

My sketches

Ana Luiza Mesquita

Vancouver, BC | (236) 234-1517 | almesquita.arq@gmail.com