JPB | Juliana Pantoja's Bedroom

Project overview

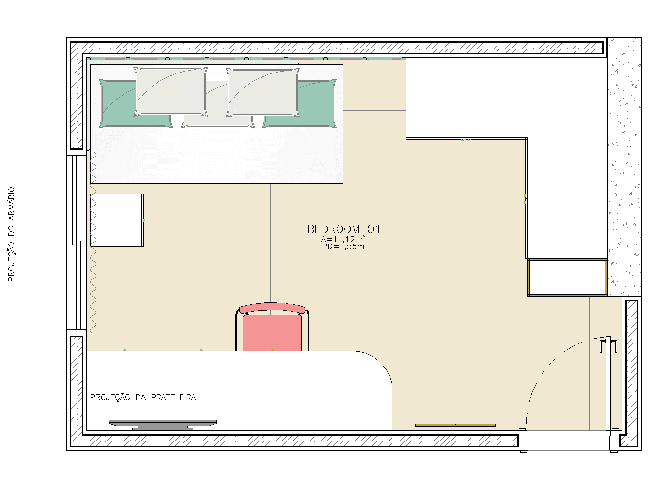
This project was designed for Juliana, a 15-year-old who loves drawing and lettering. She wanted a space that reflected her personality, featuring her favourite colours, green and coral, and including a dedicated area where she could draw, study, and do her makeup.

Details

Designed and developed by me during my time at Ponto Dois Arquitetos. I led the concept creation, spatial layout, material palette, and overall aesthetic direction. I was also responsible for producing all technical drawings and renderings.

Specifications

Area of site

129.2 ft2

Date

2020

Status of the project

Completed

Tools used

AutoCAD, SketchUp, V-ray, Photoshop

Mood Boards

Layout

Renderings

Ana Luiza Mesquita

Vancouver, BC | (236) 234-1517 | almesquita.arq@gmail.com